Description
- Immaculate THREE/ FOUR BEDROOM Detached New Build Family Home
- **FURTHER INFORMATION & IMAGERY TO FOLLOW**
- Showcasing Contemporary Fixtures & Fittings Throughout
- Allocated Off Road Parking for Two Vehicles
- Fully Enclosed, Freshly Turfed Garden & Patio Area to Rear
- Close Proximity to Retford’s Wealth of Everyday Amenities, Recreational Facilities, Restaurants, & Schools for All Age Groups
- Excellent Road & Rail Links
- Due for Completion in August 2025
- Please Call the Office Today to Arrange a Viewing
- Council Tax Band: TBC EPC Rating: Predicted B
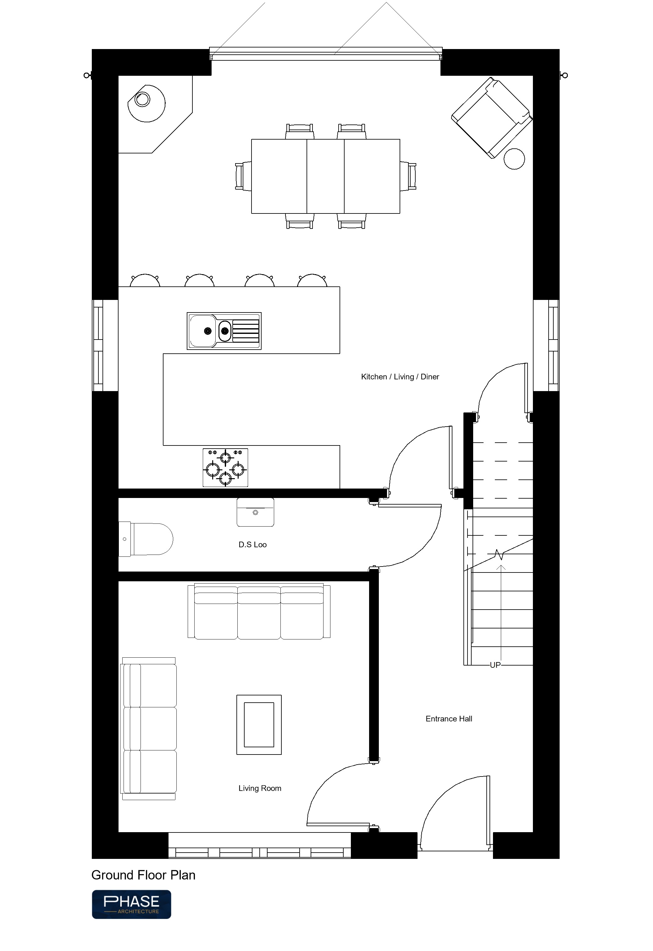
PLOT 1- A wonderful opportunity to acquire an immaculate THREE/ FOUR BEDROOM detached new build, which upon completion shall showcase contemporary fixtures and fittings throughout. Boasting a family orientated layout and set over two storeys, the well proportioned living accommodation briefly comprises of a welcoming entrance hall, open plan kitchen lounge diner, additional lounge, ground floor WC, master bedroom complete with master en suite, two further sizeable bedrooms, a home office with fourth bedroom potential, and a well appointed family bathroom. Outside, the frontage shall benefit from allocated parking for two vehicles, whilst a fully enclosed, freshly turfed garden and patio area will reside to the rear. Conveniently located on a quiet cul de sac in the heart of Retford, the custom development of two is just a brief walk from the town’s wealth of everyday amenities, recreational facilities, restaurants, schools for all age groups, and excellent road and rail links. Thrumpton Primary Academy, having most recently achieved a good Ofsted rating, is also within easy reach on foot. Viewings are highly recommended to fully appreciate the modern accommodation and prime town setting being offered for sale.
Please call the office today to arrange a viewing.
Tenure & Charges:
Tenure: Freehold - Vacant possession will be given upon completion.
Local Authority: Bassetlaw District Council
General:
While we endeavour to make our sales particulars fair, accurate and reliable, they are only a general guide to the property and, accordingly, if there is any point which is of particular importance to you, please contact the office of Alexander Jacob Limited and we will be pleased to check the position for you, especially if you are contemplating travelling some distance to view the property.
Measurements:
These approximate room sizes are only intended as general guidance. You must verify the dimensions carefully before ordering carpets or any built-in furniture.
Services:
Please note we have not tested the services or any of the equipment or appliances in this property, accordingly we strongly advise prospective buyers to commission their own survey or service reports before finalising their offer to purchase.
MONEY LAUNDERING REGULATIONS:
Intending purchasers will be asked to produce identification documentation at a later stage and we would ask for your co-operation in order that there will be no delay in agreeing the sale.
Particulars:
THESE PARTICULARS ARE ISSUED IN GOOD FAITH BUT DO NOT CONSTITUTE REPRESENTATIONS OF FACT OR FORM PART OF ANY OFFER OR CONTRACT. THE MATTERS REFERRED TO IN THESE PARTICULARS SHOULD BE INDEPENDENTLY VERIFIED BY PROSPECTIVE BUYERS OR TENANTS. NEITHER ALEXANDER JACOB LIMITED NOR ANY OF ITS EMPLOYEES OR AGENTS HAS ANY AUTHORITY TO MAKE OR GIVE ANY REPRESENTATION OR WARRANTY WHATEVER IN RELATION TO THIS PROPERTY.


