Description
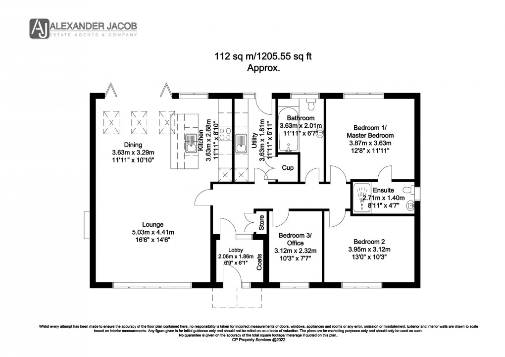
- Executive THREE BEDROOM Detached Bungalow Measuring a Sizeable 1205.6 Sq Ft.
- Family Orientated Open Plan Living Space with Bi Folding Doors Leading onto Sunny Patio Area
- Showcasing Quality Features to Include Quartz Work Surfaces & Skylights to Vaulted Ceiling
- **PROFESSIONAL PHOTOGRAPHS EXHIBIT PLOT 9**
- Southerly Aspect Garden & Driveway Accommodating Two Large Vehicles
- Developed by the Largely Successful, Nationwide Developer LASA Homes
- Private Development of Just Nine Bespoke Single Storey Energy Efficient Homes in North Leverton
- ICW 10 Year Building Warranty
- Please Call the Office Today to Arrange a Viewing
- Council Tax Band: D EPC Rating: B
PLOT 8: An exclusive opportunity to acquire a newly built THREE BEDROOM detached bungalow. Developed by LASA Homes and sitting at a sizeable 1205.6 sq ft., the well proportioned living accommodation briefly comprises of lobby, hallway, open plan kitchen lounge diner showcasing a vaulted ceiling and quartz work surfaces, utility room, master bedroom complete with master en suite, two further bedrooms and family bathroom. A driveway runs adjacent to the property accommodating two large vehicles, whilst a fully enclosed garden to the rear. Alexander Jacob Estate Agents & Co. are pleased to be working alongside the largely successful, nationwide developer LASA Homes, to present the brand new Olinda Gardens development of just nine bespoke homes in the rural village of North Leverton. Their latest expansion showcases an assortment of single storey energy efficient homes with five house types to choose from, and family orientated lives at the heart of the design. Advantageously placed on the edge of open countryside, the site enjoys a prime location for commuting to the market towns of Retford, Bawtry and Gainsborough via excellent commuter links, all of which are bursting with amenities and leisure facilities. North Leverton itself boasts a traditional village pub, nearby Post Office, Doctors surgery and Leverton Church of England Academy, and sits well within the catchment area for Queen Elizabeth’s Grammar School
Please call the office today to arrange a viewing.
Tenure & Charges:
Tenure: Freehold- Vacant possession will be given upon completion.
Local Authority: Bassetlaw District Council
Annual Service Charge Amount: To be established by the residents on site, who will each become shareholders of Olinda Gardens Maintenance Company Limited.
Service Charge Review Period: Annually
General:
While we endeavour to make our sales particulars fair, accurate and reliable, they are only a general guide to the property and, accordingly, if there is any point which is of particular importance to you, please contact the office of Alexander Jacob Limited and we will be pleased to check the position for you, especially if you are contemplating travelling some distance to view the property.
Measurements:
These approximate room sizes are only intended as general guidance. You must verify the dimensions carefully before ordering carpets or any built-in furniture.
Services:
Please note we have not tested the services or any of the equipment or appliances in this property, accordingly we strongly advise prospective buyers to commission their own survey or service reports before finalising their offer to purchase.
MONEY LAUNDERING REGULATIONS:
Intending purchasers will be asked to produce identification documentation at a later stage and we would ask for your co-operation in order that there will be no delay in agreeing the sale.
Particulars:
THESE PARTICULARS ARE ISSUED IN GOOD FAITH BUT DO NOT CONSTITUTE REPRESENTATIONS OF FACT OR FORM PART OF ANY OFFER OR CONTRACT. THE MATTERS REFERRED TO IN THESE PARTICULARS SHOULD BE INDEPENDENTLY VERIFIED BY PROSPECTIVE BUYERS OR TENANTS. NEITHER ALEXANDER JACOB LIMITED NOR ANY OF ITS EMPLOYEES OR AGENTS HAS ANY AUTHORITY TO MAKE OR GIVE ANY REPRESENTATION OR WARRANTY WHATEVER IN RELATION TO THIS PROPERTY.

