Description
- Charming THREE BEDROOM Period Property, Previously a Stable Block
- Generous Room Sizes & Proportions
- Master Bedroom Complete with En Suite
- Off-Road Parking & Outdoor Seating Area
- Set within the Grounds of a Historic Estate at the Heart of Pilham
- Easy Access to Gainsborough, Lincoln & Scunthorpe
- Please Call the Office Today to Arrange a Viewing
- Council Tax Band: B EPC Rating: D
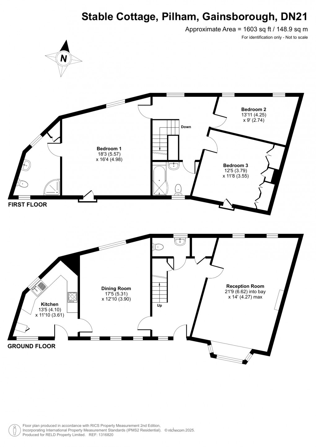
Stable Cottage is a charming, converted stable block near Gainsborough, offering THREE SPACIOUS BEDROOMS, period features to include impressive high ceilings and original character accents, alongside modern comforts.
Elegantly set within the grounds of a historic estate at the heart of Pilham, it blends peaceful village life with easy access to amenities, historic charm, and scenic Lincolnshire countryside views.
The ground floor comprises two welcoming reception rooms that offer a flexible living space for relaxing or entertaining, alongside a charming country-style kitchen that perfectly balances contemporary convenience with traditional aesthetics. Upstairs, three generously proportioned bedrooms, an en suite to the main bedroom, and a modern family bathroom complete the thoughtfully designed accommodation.
Externally, Stable Cottage benefits from convenient off-road parking and a pleasant outdoor seating area, ideal for enjoying tranquil countryside views or outdoor dining.
Situated within the peaceful, rural setting of Pilham, yet within easy reach of Gainsborough’s amenities and transport links, this home promises an enviable blend of historic charm, countryside living, and modern practicality. Located near Gainsborough, Pilham offers an idyllic rural lifestyle steeped in history and natural charm, and is renowned for its picturesque Georgian church, All Saints', one of the smallest yet most enchanting in England. Surrounded by rolling farmland and gently undulating landscapes, the area boasts a rich heritage, including the nearby Gilby medieval earthworks, reflecting its ancient Scandinavian roots. Residents enjoy both rural tranquillity and excellent accessibility; Gainsborough’s amenities and rail links are just a short drive away, whilst Lincoln and Scunthorpe are both easily reachable via the A159 and A631. Ideal for families seeking space, or those wishing to embrace a slower pace of life, Pilham promises the quintessential English countryside experience, with scenic walks, historic landmarks, and a welcoming community at its heart.
Tenure & Charges:
Tenure: Freehold- Vacant possession will be given upon completion.
Local Authority: Lincolnshire District Council
General:
While we endeavour to make our sales particulars fair, accurate and reliable, they are only a general guide to the property and, accordingly, if there is any point which is of particular importance to you, please contact the office of Alexander Jacob Limited and we will be pleased to check the position for you, especially if you are contemplating travelling some distance to view the property.
Services:
Please note we have not tested the services or any of the equipment or appliances in this property, accordingly we strongly advise prospective buyers to commission their own survey or service reports before finalising their offer to purchase.
Measurements:
These approximate room sizes are only intended as general guidance. You must verify the dimensions carefully before ordering carpets or any built-in furniture.
MONEY LAUNDERING REGULATIONS:
Intending purchasers will be asked to produce identification documentation at a later stage and we would ask for your co-operation in order that there will be no delay in agreeing the sale.
Particulars:
THESE PARTICULARS ARE ISSUED IN GOOD FAITH BUT DO NOT CONSTITUTE REPRESENTATIONS OF FACT OR FORM PART OF ANY OFFER OR CONTRACT. THE MATTERS REFERRED TO IN THESE PARTICULARS SHOULD BE INDEPENDENTLY VERIFIED BY PROSPECTIVE BUYERS OR TENANTS. NEITHER ALEXANDER JACOB LIMITED NOR ANY OF ITS EMPLOYEES OR AGENTS HAS ANY AUTHORITY TO MAKE OR GIVE ANY REPRESENTATION OR WARRANTY WHATEVER IN RELATION TO THIS PROPERTY.


