Description
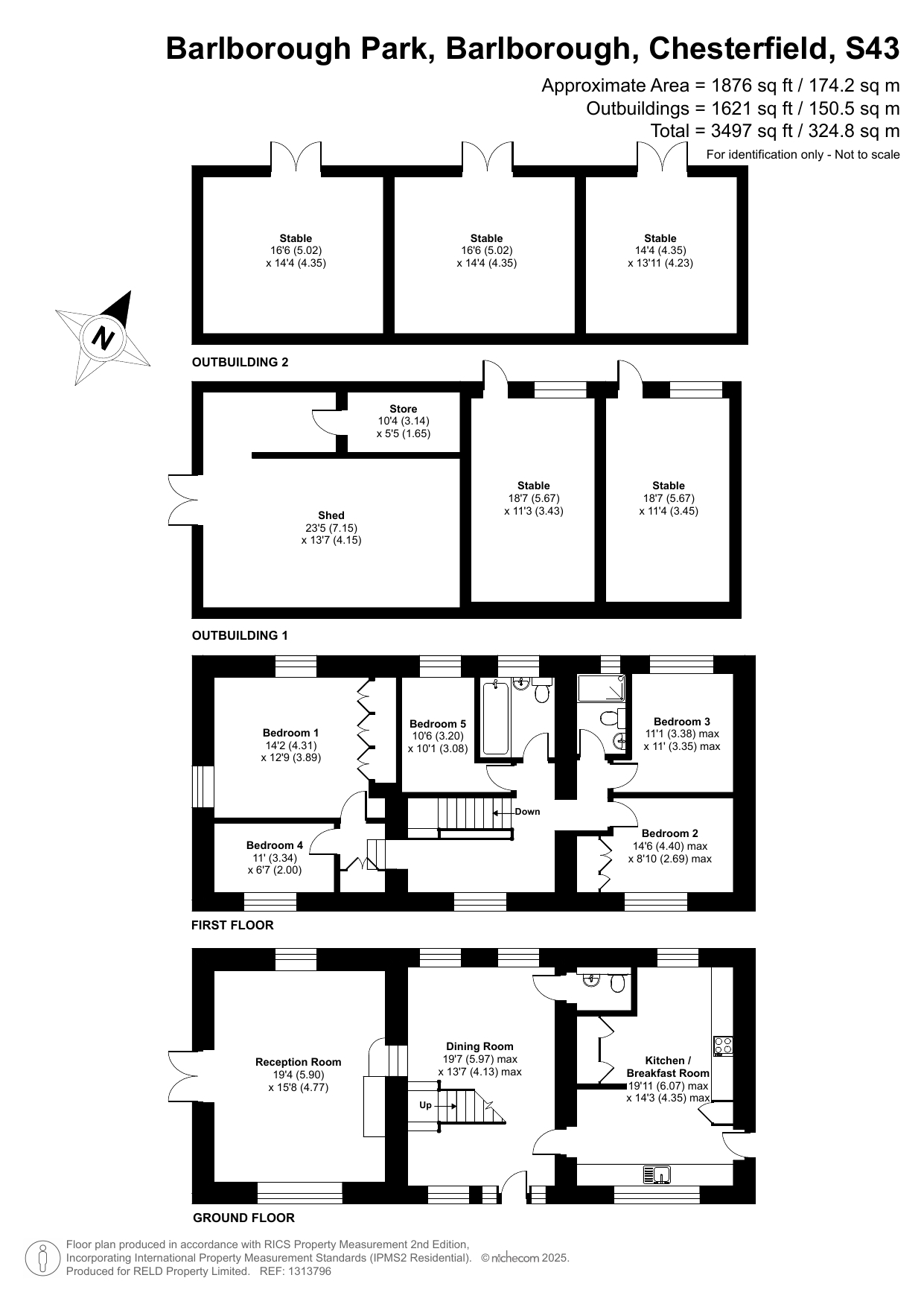
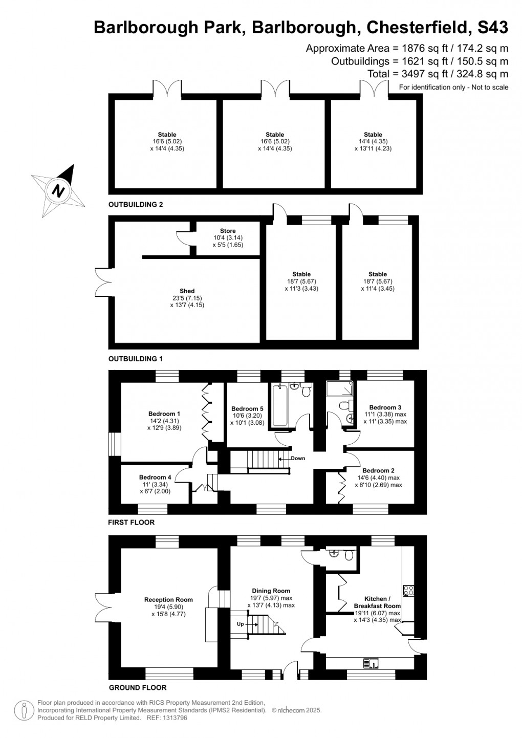
- Recently Renovated FIVE BEDROOM Stone Farmhouse
- Purpose Built Stables & Manège
- Private Setting on Approximately 2.75 Acres
- Planning Permission for Further Development
- Excellent Commuter Links
- Please Call the Office Today to Arrange a Viewing
- Council Tax Band: E EPC Rating: E
This renovated FIVE BEDROOM stone farmhouse in Barlborough, Derbyshire, offers premium equestrian facilities with stables, manège, and approved planning permission for further development. Set in picturesque countryside near renowned equestrian venues, it provides excellent hacking trails and easy access to major transport links, perfect for families seeking luxurious rural living and vibrant equestrian opportunities.
Manor House Farm is perfectly tailored for equestrian living, set within approximately 2.75 acres of secure, gently sloping paddocks, ideal for grazing. The property boasts a newly constructed, purpose-built stable block comprising four spacious boxes, a dedicated tack room, and essential hot and cold water facilities. An adjoining all-weather manège with a premium shredded carpet base provides excellent year-round schooling and training opportunities.
The grounds offer practical features such as ample hardstanding and storage areas, suitable for horseboxes, trailers, and additional equestrian equipment. Accessed through secure electric gates and approached via a private driveway, the setting offers both privacy and convenience for equestrian use.
Within easy reach of renowned local equestrian centres, riding trails, and extensive countryside hacking routes, the property caters perfectly to serious riders and hobbyists alike. The combination of high quality equestrian amenities, tranquil rural surroundings, and proximity to local competitions and riding destinations, makes this an exceptional equestrian lifestyle opportunity.
Inside, the generously proportioned home has been tastefully modernised whilst retaining its original charm. The open and inviting ground floor layout includes a spacious dual aspect lounge, an elegant dining hall featuring a grand oak staircase, and a contemporary breakfast kitchen equipped with premium fixtures and fittings. Upstairs, the well appointed bedrooms and luxurious bathrooms offer a relaxing retreat.
The property further benefits from approved planning permission: PLANNING REF- 21/00590/FUL for the erection of two buildings to provide stables and a garage/store, with one already completed to a high standard. Additionally, retrospective permission: PLANNING REF- 22/00075/FUL has been granted for a replacement equestrian building and fencing, with work commenced and concrete foundations already in place.
Situated in the delightful Derbyshire village of Barlborough, this property embodies the charm of quintessential English country living. Set amid rolling farmland and picturesque countryside, the location offers exceptional opportunities for equestrian enthusiasts and those drawn to rural pursuits.
Nearby, the highly regarded Speetley Equestrian Centre regularly hosts showjumping, dressage, and eventing competitions, catering to all riding levels. The surrounding area boasts an extensive network of bridleways and scenic hacking trails, perfect for leisurely rides or rigorous training.
The wider landscape includes easily accessible outdoor spaces such as Clumber Park, Sherwood Forest, and the Peak District National Park, renowned for spectacular views, diverse trails, and abundant wildlife. Village amenities blend seamlessly with tranquil country living, whilst convenient transport links, including proximity to Junction 30 off the M1 motorway, provide straightforward access to major cities like Sheffield, Nottingham, and Derby.
With a vibrant local community anchored by events and equestrian activities, this location offers an appealing balance of serene rural lifestyle, quality recreational options, and excellent connectivity.
Tenure & Charges:
Tenure: Freehold- Vacant possession will be given upon completion.
Local Authority: Derbyshire Council
General:
While we endeavour to make our sales particulars fair, accurate and reliable, they are only a general guide to the property and, accordingly, if there is any point which is of particular importance to you, please contact the office of Alexander Jacob Limited and we will be pleased to check the position for you, especially if you are contemplating travelling some distance to view the property.
Measurements:
These approximate room sizes are only intended as general guidance. You must verify the dimensions carefully before ordering carpets or any built-in furniture.
Services:
Please note we have not tested the services or any of the equipment or appliances in this property, accordingly we strongly advise prospective buyers to commission their own survey or service reports before finalising their offer to purchase.
MONEY LAUNDERING REGULATIONS:
Intending purchasers will be asked to produce identification documentation at a later stage and we would ask for your co-operation in order that there will be no delay in agreeing the sale.
Particulars:
THESE PARTICULARS ARE ISSUED IN GOOD FAITH BUT DO NOT CONSTITUTE REPRESENTATIONS OF FACT OR FORM PART OF ANY OFFER OR CONTRACT. THE MATTERS REFERRED TO IN THESE PARTICULARS SHOULD BE INDEPENDENTLY VERIFIED BY PROSPECTIVE BUYERS OR TENANTS. NEITHER ALEXANDER JACOB LIMITED NOR ANY OF ITS EMPLOYEES OR AGENTS HAS ANY AUTHORITY TO MAKE OR GIVE ANY REPRESENTATION OR WARRANTY WHATEVER IN RELATION TO THIS PROPERTY.

