Description
- A Bespoke FOUR DOUBLE BEDROOM Detached Family Home Measuring Approximately 2870 Sq Ft.
- Showcasing a Feature Oak Staircase, Bright Balconied Landing & Underfloor Heating Throughout the Ground Floor
- Extensive Family Orientated Living Space Ideal for Entertaining
- Two Double Bedrooms Enjoying En Suite Facilities
- Choice of Central Heating System with Optional Air Source Heat Pump, Grey Water Recovery & Optional Solar Panels to Roof
- Freshly Turfed Wrap Around Gardens & Patio Area Extending from the Heart of the Home
- Ample Driveway & Detached Double Garage Catering for Multiple Vehicles
- Overlooking Open Farmland to the East Elevation
- Private Development of Just Five Individually Designed, Craftsmen Built Energy Efficient Homes in North Wheatley with Excellent Commuter Links
- 10 Year Building Warranty
**POTENTIAL FOR SUBSTANTIAL STAMP DUTY SAVING- PLEASE ENQUIRE FOR FURTHER DETAILS** PLOT 3: An excellent opportunity to acquire a bespoke FOUR DOUBLE BEDROOM detached family home, situated on a private development at the end of a quiet country lane, and benefitting from stunning rural views to the east elevation. Hapil Homes is offering a great opening to allow the purchaser to influence the design of the kitchen, bathrooms, and internal finishes including decoration, wall and floor tiling.
The property which totals approximately 2870 sq ft. is being built using the most energy efficient materials, and shall benefit from underfloor heating to the entirety of the ground floor.
Thoughtfully designed to capture an abundance of natural light throughout, the main entrance hall boasts ample storage and seamlessly flows to all ground floor living accommodation, including a large lounge with provisions for a cosy log burner, perfect for winding down and relaxing, two versatile reception rooms which could be utilised as a snug, home office, music room, playroom or separate dining room, and a centrally placed WC. Undoubtedly the heart of the home is the extensive open plan kitchen/ dining room/ family room, perfect for socialising, with a focal island, access to a well appointed utility room, and bi folding doors leading out onto a breakfast terrace.
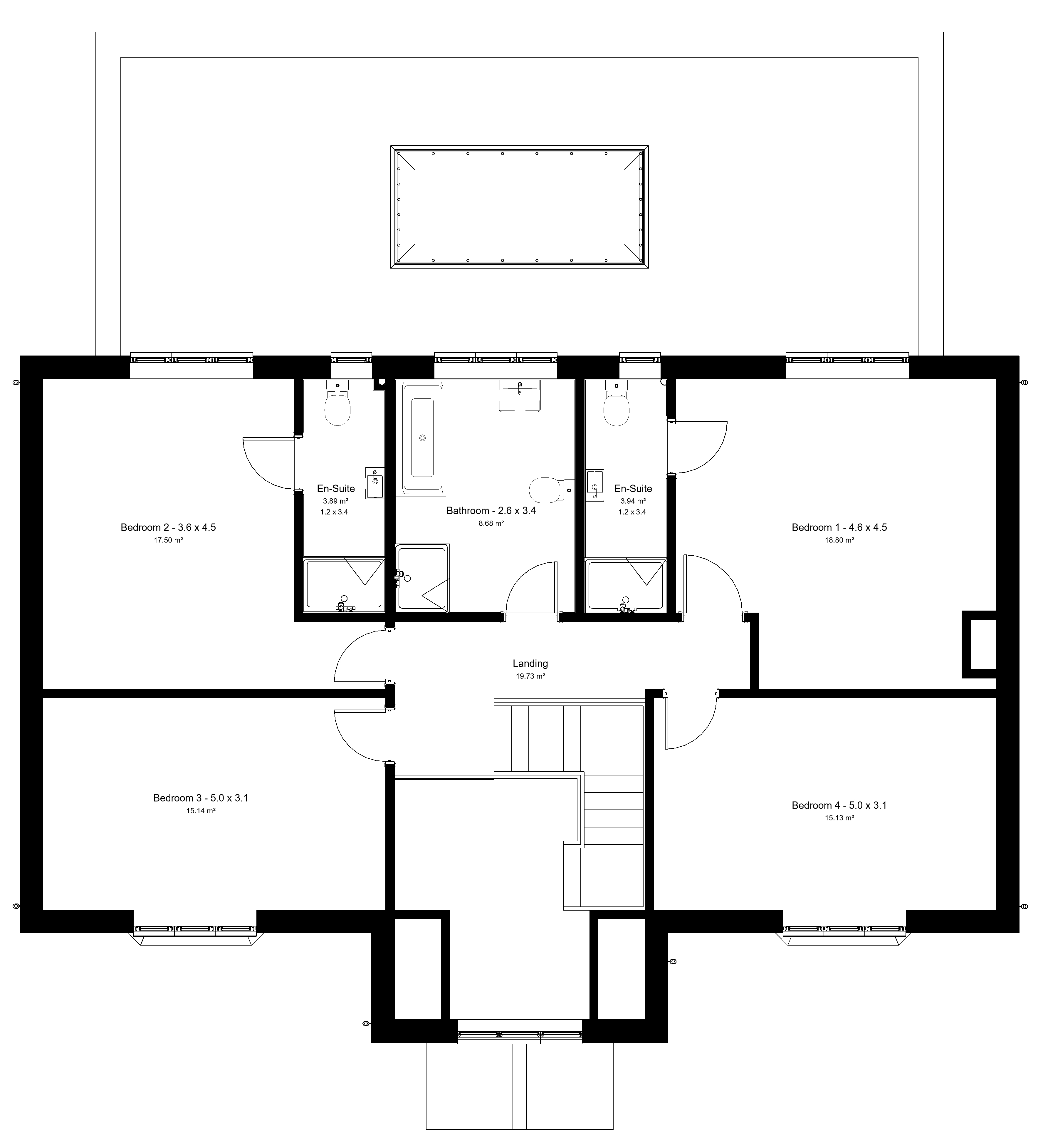
An impressive balconied landing is reached via a feature oak staircase, which provides access to the master suite with en suite facilities, a second bedroom enjoying the same luxuries, two further double bedrooms and a four-piece family bathroom.
Externally, the property occupies a sizeable plot of land overlooking open farmland to the east elevation, and shall benefit from a large patio area to the rear, ideal for entertaining into the evening. An ample driveway and detached double garage catering for multiple vehicles, are located to the frontage.
Advantageously placed on a private development of just five individually designed, craftsmen built energy efficient homes in the prestigious village of North Wheatley, this imposing property enjoys a prime location for commuting to Doncaster, Bawtry, Retford and Gainsborough via the A631 and A620, and sits well within the catchment area for Queen Elizabeth’s Grammar School. Retford Train Station, approximately 6.5 miles away offers a direct line to London King’s Cross in less than 90 minutes at selected times. North Wheatley itself boasts a nearby Post Office and shop, The Leys Café, a boutique fitness suite and North Wheatley Church of England Primary School, which has most recently achieved an outstanding Ofsted rating. For those who enjoy the outdoors, Wheatley Tennis Club, located on The Playing Fields is just a brief walk away, welcoming members of all abilities and ages all year round. North Wheatley with Leverton Cricket Club rests close by, with weekly home and away matches during the season. Viewings are highly recommended to fully appreciate the extensive accommodation and rural countryside setting being offered for sale.
Please call the office today for further information, or to arrange an appointment on site.
Entrance Hall:
Kitchen Diner:
14' 1" x 37' 7" (4.29m x 11.46m)
Living Room:
25' 3" x 16' 4" (7.70m x 4.98m)
Utility Room:
6' 9" x 10' 8" (2.06m x 3.25m)
Ground Floor WC:
6' 9" x 4' 9" (2.06m x 1.45m)
Home Office:
8' 5" x 16' 4" (2.57m x 4.98m)
Snug:
9' 2" x 16' 4" (2.79m x 4.98m)
First Floor Landing:
Master Bedroom:
14' 7" x 15' 1" (4.45m x 4.60m)
Master En Suite:
11' 2" x 3' 9" (3.40m x 1.14m)
Bedroom Two:
14' 8" x 11' 8" (4.47m x 3.56m)
En Suite:
11' 2" x 3' 9" (3.40m x 1.14m)
Bedroom Three:
10' 2" x 16' 4" (3.10m x 4.98m)
Bedroom Four:
10' 2" x 16' 4" (3.10m x 4.98m)
Family Bathroom:
11' 2" x 8' 5" (3.40m x 2.57m)
Tenure & Charges:
Tenure: Freehold- Vacant possession will be given upon completion.
Local Authority: Bassetlaw District Council
Annual Service Charge Amount: To be finalised at a later stage of the build.
Service Charge Review Period: TBC
General:
While we endeavour to make our sales particulars fair, accurate and reliable, they are only a general guide to the property and, accordingly, if there is any point which is of particular importance to you, please contact the office of Alexander Jacob Limited and we will be pleased to check the position for you, especially if you are contemplating travelling some distance to view the property.
Measurements:
These approximate room sizes are only intended as general guidance. You must verify the dimensions carefully before ordering carpets or any built-in furniture.
Services:
Please note we have not tested the services or any of the equipment or appliances in this property, accordingly we strongly advise prospective buyers to commission their own survey or service reports before finalising their offer to purchase.
MONEY LAUNDERING REGULATIONS:
Intending purchasers will be asked to produce identification documentation at a later stage and we would ask for your co-operation in order that there will be no delay in agreeing the sale.
Particulars:
THESE PARTICULARS ARE ISSUED IN GOOD FAITH BUT DO NOT CONSTITUTE REPRESENTATIONS OF FACT OR FORM PART OF ANY OFFER OR CONTRACT. THE MATTERS REFERRED TO IN THESE PARTICULARS SHOULD BE INDEPENDENTLY VERIFIED BY PROSPECTIVE BUYERS OR TENANTS. NEITHER ALEXANDER JACOB LIMITED NOR ANY OF ITS EMPLOYEES OR AGENTS HAS ANY AUTHORITY TO MAKE OR GIVE ANY REPRESENTATION OR WARRANTY WHATEVER IN RELATION TO THIS PROPERTY.


